SAINT-ONDRAS VOTRE FUTUR LOCAL COMMERCIAL NEUF AVEC VITRINES ET PARKINGS

SAINT-ONDRAS VOTRE FUTUR LOCAL COMMERCIAL NEUF AVEC VITRINES ET PARKINGS

500 € /mois

38490 Saint-ondras

  • 55 m²
Référence de l'annonce : 68-LPI38
Classe énergie :
A
B
C
D
E
F
G
GES :
A
B
C
D
E
F
G
État du bien : SUR LE MARCHE

Caractéristiques

  • Ascenseur : 0
  • Stationnement externe : 0
  • Grenier : NON
  • Cave : Non
  • Piscine : Non
  • Surface jardin :
  • Surface terrain :
  • Surface terrasse :

Description

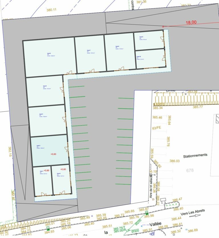
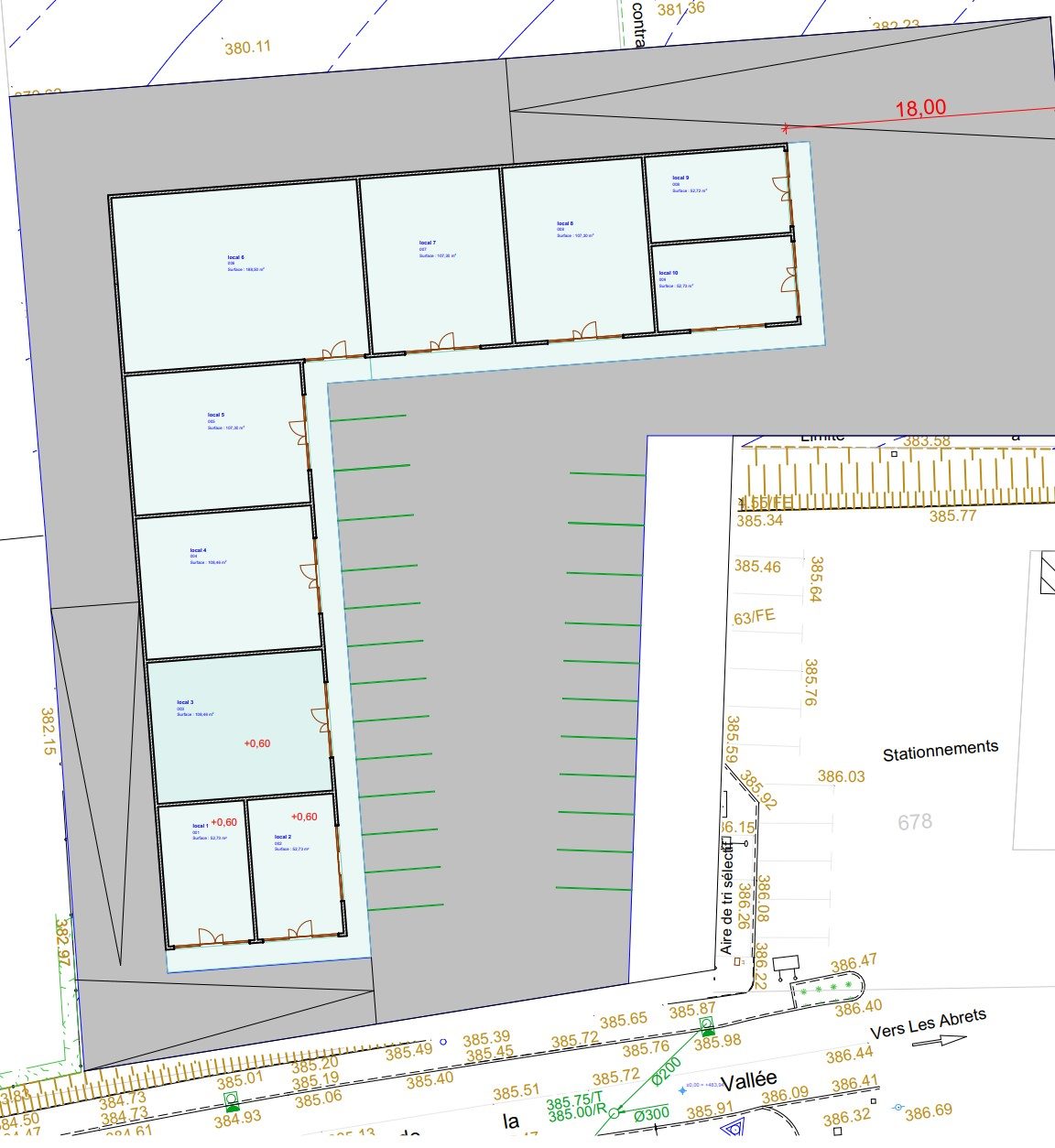
SAINT-ONDRAS AU COEUR DU VILLAGE VENEZ DECOUVRIR VOTRE FUTUR LOCAL COMMERCIAL NEUF BRUT FLUIDES EN ATTENTE VISIBLE DEPUIS L’AXE PRINCIPAL.

TRAVAUX EN COURSDIVISIBLE A PARTIR DE 55 M² VOUS BENEFIICIEZ DE LARGES VITRINES ET DE NOMBREUX STATIONNEMENTS.

IL RESTE QUELQUES LOTS DE 55 M² A 190 M².

N’HESITEZ PAS A NOUS CONTACTER. POSSIBILITE DE BOX AU NIVEAU -1EXEMPLE LOT C9 = LOYEL MENSUEL 500 €/HT + 19 €/HT DE PROVISIONS DE CHARGES ET 19 €/HT DE PROVISIONS DE TAXES FONCIERES.

HONORAIRES PRENEURS = 15 % HT DU LOYER ANNUEL SOIT 900 €/HT

LPI – IMMOBILIER D’ENTREPRISE

 

Les informations sur les risques auxquels ce bien est exposé sont disponibles sur le site Géorisques

Image

Vous souhaitez nous confier un bien immobilier à vendre, à louer ou à gérer ?

Confiez-nous votre bien immobilier et maximisez vos chances de réussite !
Notre agence immobilière LPI vous accompagne à chaque étape de votre projet immobilier avec une expertise reconnue et une expérience solide pour vous assurer une transaction sereine et réussie.

@ - LPI - Conseil en immobilier entreprise et habitation - Tous droits réservés - Accompagné par l'Agence AdNI Création site internet - Mentions légales

Confiez-nous un bien à